?
深圳·嘉洲大厦

导读:由于地下室的结构和用途决定了地下室防水的复杂性,因此如何做好地下室防水是大家都非常关心的问题。那么我们应该如何进行地下室防水工程呢?

地下室防水

今天,小编就以公司在深圳的一个比较典型的防水工程为例,解析多个部位的防水设计与施工,希望有益于大家以后的业务。

一、工程介绍

1、项目名称:深圳嘉洲大厦

2、项目地址:深圳市宝安区

3、项目概况:项目总建筑面积约15.166万㎡(含四层地下室建筑面积约5.3万m³) ,工程基础为桩基础、筏板基础、独立基础,除了地下室、避难层,还有架空绿化休闲,所以整个工程对防水要求还是比较高的。

地下室防水

二、防水方案设计

1、地下室底板防水施工工艺

基层清理、修补→空铺PCM-CL反应粘结型高分子预铺防水卷材→长、短边搭接粘结→节点加强处理→揭除卷材隔离膜、绑扎钢筋→检查修补、质量验收→底板及面层施工。

地下室防水
地下室底板构造图

2、地下室侧墙外侧防水施工工艺

基层清理、修补、润湿→配制聚合物水泥浆→节点密封、加强处理→定位、弹线、试铺→配制聚合物水泥浆→大面铺贴PCM-CL反应粘结型高分子湿铺防水卷材→防水层养护→检查修补、验收→面层施工。

地下室防水
地下室侧墙构造图

3、地下室侧墙内侧防水施工工艺

基面清理→配cq9电子官网入口RQ305活母胶晶(水泥基渗透结型防水剂)料→刮涂施工→检查修补→涂层养护、质量验收→面层施工。

地下室防水

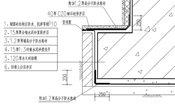
4、地下室顶板防水施工工艺

基面处理→熔胶→细部节点增强处理→PCM-CL反应粘结型高分子湿铺防水卷材定位、试铺→卷材回卷→刮涂/喷涂非固化防水涂料→铺贴防水卷材→卷材收头、密封处理→防水层检查修补、质量验收→面层施工。

地下室防水
地下室顶板构造图

5、地下室种植顶板防水施工工艺

基面处理→熔胶→细部节点增强处理→PCM-CL耐根穿刺型高聚物改性沥青防水卷材定位、试铺→卷材回卷→刮涂/喷涂非固化防水涂料→铺贴防水卷材→卷材收头、密封处理→防水层检查修补、质量验收→面层施工。

地下室防水
地下室顶板构造图(同上)

6、消防水池和景观水池防水施工工艺6

基面处理→配制活母胶晶→刮涂活母胶晶→检查修补→涂层养护、质量验收→配制聚合物水泥砂浆→刮涂聚合物水泥砂浆→检查修补→涂层养护、质量验收→面层施工

地下室防水

7、节点难点、重点工艺

一些节部部位、重点部位需要做加强处理,如锚杆节点、桩头、侧墙与底板、螺杆节点、集水坑水井井口等等这些部位需要特别处理,以增强防水性能。

地下室防水
地下室防水
地下室防水
地下室防水
地下室防水

三、项目所用材料介绍

1、PCM-CL反应粘结型高分子预铺防水卷材

PCM-CL反应粘结型高分子预铺防水卷材采用了共聚物树脂类高分子(HDPE、LDPE、EVA、PVC、ECB、TPO)等均片材为主体防水层,在其上表面或下表面涂一层具有蠕变功能橡胶沥青自粘材料再覆以硅油防粘隔离膜制成的高分子自粘胶膜防水卷材,可根据需要在高分子片材上复合组织物加强组成增强型高分子防水卷材。

地下室防水

优点特性:

①单层卷材,双道防线:PCM卷材是高分子片材和自粘卷材复合而成,兼有两种防水材料的优势,大大提高了抗穿刺、耐候、自愈、耐高、低温等性能,物理性能更优异,化学性能更稳定。 

②搭接可靠,解决隧道和冬季施工难题:PCM卷材纵横向搭接不但可以自粘搭接,也可以全焊接。虽然在冬季环境温度很低时材料粘性不好,但可以采用全焊接的方式搭接,因而并不影响卷材防水层的完整性和质量。 

③施工方法多样:可根据现场条件选择:预铺、湿铺、干铺、吊挂、机械固定等施工工法;施工灵活,效果优。 

④阻根自愈能力:PCM卷材具有橡胶的回弹性和超强的自粘性,对钉子等尖锐物体具有良好的裹覆作用,施工时卷材被砂子钉子等硬物戳穿后能自行愈合。具有阻根功能特别适合种植屋面。 

⑤超强的“锁水”功能:PCM卷材与基面的粘结力强,可将因卷材破损引起的渗漏限制在局部范围内,避免导致防水层整体失效。 

⑥对基层条件要求低,简便快捷:PCM卷材施工不受基层平整度的影响,还可以在潮湿基面上施工,施工自由度高,不受天气影响可以大大缩短工期,节约成本。 

⑦安全环保:PCM卷材以及配套产品,不含有机溶剂,施工现场也不存在使用明火作业现象,整个施工过程消除了对环境的潜在危害,也节约了能源。 

⑧卷材宽幅大该卷材宽幅可达2.2m,减少搭接施工时间加快施工进度。

2、PCM-CL反应粘结型高分子湿铺防水卷材

PCM-CL反应粘结型高分子湿铺防水卷材是在PCM强力交叉膜的上表面或上下表 面涂一层具有蠕变功能的橡胶沥青自粘材料,再覆以硅油防粘隔离膜制成。该产品为PCM快速反应粘结技术与性能优越的PCM强力交叉膜的完美结合。

地下室防水

优点特性:

(1)优异的物理性能:PCM强力交叉膜采用交叉叠压技术,较普通薄膜具有高的抗拉强度、大的延伸率、好的耐撕裂性、高 的抗冲击性、稳定的尺寸、优异的耐刺穿性能和耐候性、耐腐蚀性!

(2) 超强的粘结性能:卷材通过聚合物水泥与混凝土结构层发生化学反应和物理吸附,使卷材与结构层形成远大于物理吸附 粘结强度的永久性物理化学粘结层。形成界面封闭层杜绝窜水,加上PCM强力膜自身优异的防水性能,形成单层卷材,双 道防线的防水效果。

(3)优越的防水效果:超强的“锁水”自愈功能、不扩散、维修方便,阻根自愈能力强、避免硬物或植物根系刺穿卷材;遇 微小破损,可自愈合,遇基层裂缝,可透过封闭层和柔性层二元蠕变抗裂结构有效抵抗。

(4)简便的施工工艺:可直接在潮湿或有潮气的混凝土基层上施工,基层要求低、缩短工期、节约施工成本,采用聚合物水 泥浆即可将卷材牢固粘结,无需明火作业,环保,铺第二到防水层或卷材搭接均可干铺或者湿铺(直接用聚合物水泥粘 结),PCM卷材还具有良好的抗裂性易于施工裁剪。

3、PCM-CL耐根穿刺型高聚物改性沥青防水卷材

PCM-CL耐根穿刺型高聚物改性沥青防水卷材是高标号石油沥青加入特殊改性剂、进口阻根剂加以改性、阻根化处理,以高强长纤聚酯胎为胎体,表面覆以PE防粘薄膜制成的改性沥青耐根穿刺防水卷材。

地下室防水

优点特性:

(1)技术可靠、防水阻根双效:采用进口阻根剂对改性沥青体系阻根化处理,优选长纤聚酯胎体,形成以化学阻根为主,物理阻根为辅的双重体系,防水阻根双重可靠。

(2)性能优异、工艺简单:卷材抗拉强度大、延伸率高、耐腐蚀、耐霉菌、耐候性好,对基层收缩、变形、开裂适应能力强。热熔法施工,冷热地区均可适用,热接缝搭接更可靠耐久。

(3)体系健康、安全:以阻根防水卷材、蓄排水板、土工布等搭配而成的种植防水系统,解决了种植基层防水与阻根双重要求,又给植物提供良好的蓄排水条件,体系耐植物施肥,确保植物的健康生长。

4、CQ105聚合物水泥复合防水涂料

JS复合防水涂料是吸收德国先进技术开发的,由有机液料和无机粉料复合而成的双组分防水涂料,是一种具有有机材料弹性高又有无机材料耐久性好等优点的新型防水材料,涂覆后可形成高强坚韧的防水涂膜,并可根据需要配制成彩色层。地下室防水

优点特性:

(1)湿面施工,涂层坚韧高强;

(2)加入颜料可做成彩色装饰层;

(3)无毒、无味,可用于食用水池的防水;

(4)耐高温(140℃),尤其适用于道路及桥梁防水;

5、RQ305活母胶晶(水泥基渗透结晶型防水剂)

活母胶晶(水泥基渗透结晶型防水材料)是一种以水泥、石英粉等为主要基材,并掺入多种活性化学物质的粉状材料,经与水拌和调配而成的具有渗透结晶功能的无机型防水材料。

地下室防水

(1)无毒无味无污染,环保安全,可用于饮用水工程;

(2)抗化学腐蚀,有效提高钢筋混凝土结构耐久性,可与结构同寿命;

(3)防水涂层强度高,能承受一定水压,具有二次抗渗功能;

(4)粘结性强,具有渗透功能,能愈合细微裂缝;

(5)施工简单,操作方便,综合成本低。

6、CQ112热速涂-蠕变型非固化橡胶沥青防水涂料

cq9电子官网入口非固化橡胶沥青防水涂料是一种以活性橡胶、沥青和特殊添加剂为主要原料,经过特殊工艺制成的一种高蠕变性的热熔型防水涂料。本品保持粘瞅胶质状态蠕变性能,具有拉伸能力强,抗反复疲劳,能与众多卷材复合等优点,是一种多功能防水涂料。

地下室防水

优点特性:

(1)具有自愈合、防渗水、防窜水、抗疲劳、耐老化等优势功能。

(2)蠕变性、自愈性强。能很好的填补基层的毛细孔和裂缝,防水层出现破损也能自行修复,能有效解决防水层窜水难题。

(3)粘结性能优异,碰触即粘,难以剥离,可在潮湿基面粘结,也可与木材,金属等基材粘结。

(4)优越的耐高低温性。60-70℃不会流淌滑移,-20℃仍有良好柔韧性和粘结性。

(5)施工方便快捷。可根据需要刮涂和喷涂,立即成膜无需要养护,无需搭接,效率高。

(6)固含量高,储存期长。固含量可达98%以上,密闭条件可长期储存。

上一篇:玉林·聚锦花园
下一篇:暂无