?
常见问 题现象 |
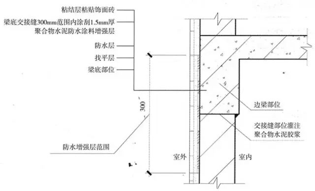
外墙梁墙交接缝渗漏 |
规范标准 相关规定 |
《建筑防水工程技术规程》DBJ 15-19-2006 4.5.2.2 外墙不同材料交接处应在找平层中附加金属网,网的每侧宽度为100~150mm。 4.5.2.3 超过9层的住宅、24m以上的公共建筑或对防水有特殊要求的部分外墙找平层抹灰前应满挂金属网。9层以下的住宅、24m以下的公共建筑或对防水有特殊要求的部分外墙找平层抹灰前宜满挂纤维网格布或钢丝网。 《建筑外墙防水工程技术规程》JGJ/235-2011 5.3.2 砂浆防水层中可增设耐碱玻璃纤维网布或热镀锌电焊网增强,并宜用锚栓固定于结构墙中。 |
原因分析 |
1、梁底与墙体交接缝没有采用砂浆嵌填密实,存在较多孔洞。 2、外墙面施工时没有安装钢网或安装部位不是在砂浆中部,起不到抗裂作用而开裂渗漏。 3、轻质墙体与混凝土结构两者温度膨胀系数差异大,受温差作用两者变形不同步而开裂渗漏。 4、砌筑墙体时一次性到梁底部位,墙体因砂浆没完全固化下沉开裂。 5、梁墙交接部位未设置防水增强层。 |
预防措施 |
1、梁底与墙体交接缝没有采用砂浆嵌填密实,存在较多孔洞。 2、外墙面施工时没有安装钢网或安装部位不是在砂浆中部,起不到抗裂作用而开裂渗漏。 3、轻质墙体与混凝土结构两者温度膨胀系数差异大,受温差作用两者变形不同步而开裂渗漏。 4、砌筑墙体时一次性到梁底部位,墙体因砂浆没完全固化下沉开裂。 5、梁墙交接部位未设置防水增强层。 |
一般工序 |
1、梁底与墙体交接缝没有采用砂浆嵌填密实,存在较多孔洞。 2、外墙面施工时没有安装钢网或安装部位不是在砂浆中部,起不到抗裂作用而开裂渗漏。 3、轻质墙体与混凝土结构两者温度膨胀系数差异大,受温差作用两者变形不同步而开裂渗漏。 4、砌筑墙体时一次性到梁底部位,墙体因砂浆没完全固化下沉开裂。 5、梁墙交接部位未设置防水增强层。 |
参考图示 |
|