?
外墙空调位发生渗漏,怎么办?
发布时间:2021-10-14浏览量:
常见问
题现象

外墙洞口上盖板根部渗漏,下盖板排水不畅

规范标准
相关规定

《建筑防水工程技术规程》DBJ 15-19-2006

4.5.1.2 突出墙面的腰线、檐板、窗楣板上部都应做防水处理,并设置不小于5%的向外排水坡,下部应做滴水,板面与墙面交角处应做直径50mm圆角。

4.5.1.8 外墙面空调口、通风口、设备洞口及其他洞口,洞口底面应向室外倾斜,其坡度应不小于5%,或采取防雨水倒灌的措施。

原因分析

1、下托板面砂浆向外排水坡度不足,雨水倒灌室内。

2、上盖板面不做防水层,如上盖板根部混凝土产生开裂、蜂窝或浇捣振捣不足产生渗漏时影响室内。

3、上盖板边缘滴水线设施不足,雨水倒灌入室内。

4、上飘板根部与墙体未设置反坎梁导致砖砌体与飘板之间的缝隙渗水。

预防措施

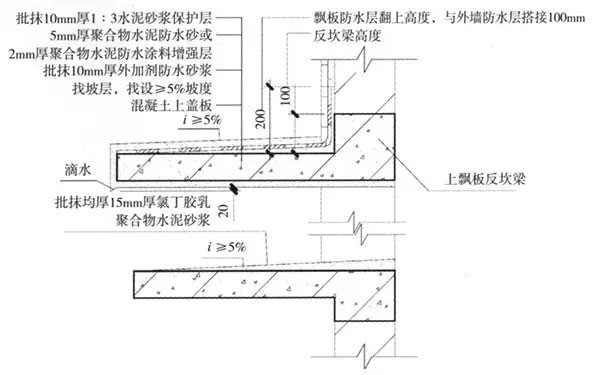
1、下托板砂浆应设置坡度≥5%,且宜选用吸水率低的聚合物水泥防水砂浆。

2、上飘板根部与墙体设置反坎梁。

3、上盖板应做防水砂浆找平找坡层,并采用聚合物水泥防水涂料作防水增强层,盖板边缘设置滴水线。

一般工序

1、浇筑上下盖板,要求上盖板飘出宽度不少于200mm (具体尺寸应按洞口实际大小而定,以建筑设计为准),下飘板应按设计尺寸而定。

2、清理上、下板饰面基面并洒水湿润。

3、上盖板批抹掺外加剂防水砂浆,要求坡度≥5%,并反上外墙立面200mm,与外墙防水层搭接,且阴角部位加设热镀锌钢丝网,规格同外墙挂网。

4、上盖板加设一道5mm厚聚合物水泥防水砂浆或2mm厚聚合物水泥防水涂料增强层,并与外墙防水层搭接。

5、在上盖板下部边缘设置批抹滴水线。

6、下飘板采用聚合物水泥砂浆进行批抹,要求坡度≥5%。

7、完成上、下板外墙饰面层。

参考图示

外墙防水
外墙空调洞口渗漏处理示意图

上一篇:防止隧道渗漏水七大措施
下一篇:cq9电子官网入口三号瓷砖透明防水涂料特点以及施工方法
热门资讯