?
服务热线
400-777-2203
家装防水施工中的常见问题
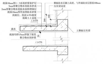
外墙空调位发生渗漏,怎么办?
cq9电子官网入口三号瓷砖透明防水涂料特点以及施工方法
关于外墙变形缝引起的渗漏,如何预防和处理
防止隧道渗漏水七大措施